top of page

Maison Charme - 4 Chambres

Habitation 4 chambres – Élégance moderne & espaces optimisés
Découvrez cette maison familiale pensée pour le confort quotidien, alliant praticité et modernité. Située dans un cadre résidentiel soigné, Le Charme offre l’équilibre parfait entre vie contemporaine et atmosphère chaleureuse.
📐 Surfaces
-
Superficie RDC: 75 m²
-
Superficie Carport : 14 m²
-
Surface étage 1 : 56 m²
-
Combles aménageables : 25 m²
-
Surface totale : 170 m²
🛏️ Composition
-
4 chambres confortables
-
Grand séjour traversant de 49m² avec cuisine ouverte
-
1 Salle de bain + salle d’eau / WC séparés
-
2 WC séparés
-
Grande Buanderie de 13 m² au RDC
-
Combles aménageables idéal pour bureau, salle de jeux ou chambre
🌿 Extérieurs & confort
-
Jardin privatif avec terrasse
-
Carport
-
Stationnement privatif



Rez de Chaussée
Acceuillant et Moderne
Dès l’entrée, vous découvrez un espace de vie spacieux et baigné de lumière, pensé pour conjuguer convivialité et modernité. Le séjour traversant de 49,5 m² accueille une cuisine ouverte élégante, une salle à manger conviviale et un salon chaleureux, offrant un cadre idéal pour partager des moments en famille ou entre amis. Une buanderie attenante de 13,8 m² vient compléter l’ensemble avec une touche de praticité indispensable au quotidien. Le rez-de-chaussée comprend également un WC séparé accessible depuis le hall d’entrée, et bénéficie d’un accès direct vers la terrasse et le jardin privatif, prolongeant naturellement l’espace de vie vers l’extérieur.

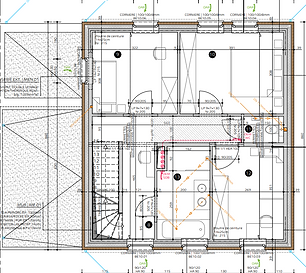
Premier étage
Intime et Apaisant
À l’étage du Charme, l’organisation a été pensée pour combiner confort et flexibilité :
-
CH1 (9,14 m²) : chambre principale lumineuse, côté jardin
-
CH2 (9,92 m²) : chambre idéale pour enfants, bureau ou espace loisirs
-
CH3 (9,06 m²) : chambre d’appoint, salle de jeux ou bureau secondaire
-
CH4 (15,57 m²) : vaste chambre
Un hall de 6,8 m² dessert l’ensemble, ainsi qu’une salle de bain fonctionnelle de 4,0 m², équipée de baignoire, vasque et rangements pratiques. L’étage comprend également un WC séparé de 1,5 m²,




bottom of page